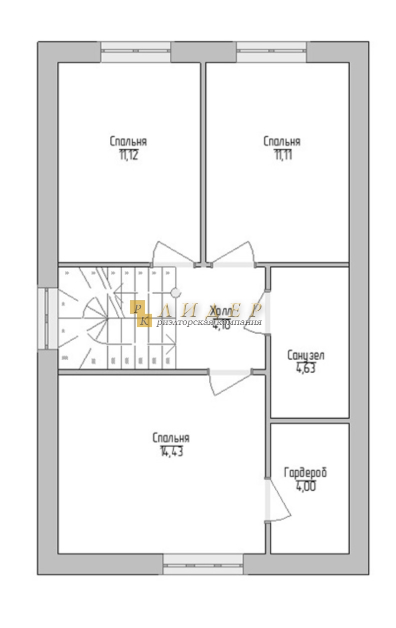
Продается дом, 105 кв.м., /2 эт

Обзор
Стоимость
7 350 000
Комнат в доме4
Категория землиИЖС
Тип комнатИзолированные
Тип парковкиНа улице
РемонтТребуется ремонт
Категория земли AvitoИндивидуальное жилищное строительство (ИЖС)
Способ связи avitoПо телефону и в сообщениях
Материал стен (Авито дома)Кирпич
Тип отопления cianАвтономное газовое
Тип строенияДом
Площадь, кв.м.105
Площадь участка, сот5
Этажность2
Материал стен Кирпич
Адрес
Населенный пунктКалуга
Улицаулица Семигорская
В избранное дом 105 кв Турынино, Семигорская

Хотите небольшой двухэтажный дом? Продается дом БЕЗ КОМИССИЙ!!! и переплат! Продам дом в новом коттеджном поселке на 71 дом в Турынино

 Проект «Неаполь» площадью 105 кв.м. на участке 5 сотки. Идеально подходит для тех, кто хочет купить дом по доступной цене. В стоимость входит:

✅фундамент (вид фундамента определит проектировщик после геологии з/у) пример - перевёрнутая чаша с заглублением 1,2 метра, сваи с заглублением не менее 1,8м

✅стены - газоблок 400 мм D500

✅отделка фасада - штукатурка короед

✅покраска дома в 2 слоя

✅окна ПВХ премиум сегмента (REHAU или VEKA) 70 мм

✅крыша металлочерепица 0,5

✅входная дверь металлическая

✅утеплённая крыша 250 мм

✅закладные под коммуникации и заведение в дом

✅монтаж вентиляционных каналов

✅межкомнатные перегородки 100мм

✅полы по бетону толщиной 250-300 мм Дом можно посмотреть в живую

Подходит под льготную ипотеку .
Поможем с одобрением ипотеки.

№ 16276

Расположение

Важно! На карте не всегда указано точное местоположение. Более точную информацию можно узнать у менеджера, разместившего объект